球差场发射透射电子显微镜 HF5000
特点
- 标配日立生产的照射系统球差校正器(附自动校正功能)
- 搭载具有高辉度、高稳定性的冷场FE电子枪
- 镜体和电源等的高稳定性使机体的性能大幅度提升
- 观察像差校正SEM/STEM图像的同时观察原子分辨率SE图像
- 采用侧面放入样品的新型样品台结构以及样品杆
- 支持高立体角EDX*的对称配置(对称Dual SDD*)
- 采用全新构造的机体外壳盖
- 配备日立生产的高性能样品杆*
* 选项
高辉度冷场FE电子枪×高稳定性×日立制球面像差校正器
以长年积累起来的高辉度冷场FE电子源技术为基础,进行优化,进一步实现电子枪的高度稳定性。
此外,还更新了镜体,电源系统和样品台,以支持观察亚Å图像,并提升了机械和电气稳定性,然后与日立公司的球差校正器结合使用。
不仅可以稳定地获得更高亮度更精密的探头,而且自动像差校正功能可以实现快速校正,从而易于发挥设备的固有性能。使像差校正可以更实用。
支持高立体角EDX*的对称Dual SDD*
支持双重配置100 mm2 SDD检测器,以实现更高的灵敏度和处理能力进行EDX元素分析。
由于第二检测器位于第一检测器的对面位置,因此,几乎不会因为样品倾斜,导致X射线中的信号检测量发生变化。所以,即使是结晶性样品,也不用顾忌信号量,可完全按照样品的方向与位置进行元素分析。
此外,对于电子束敏感样品、低X光辐射量的样品,除了原子列映射,在低倍、广视野的高精细映射等领域也极为有效。
像差校正SEM图像/STEM图像 同时观察
配有标配二次电子检测器,可同时观察像差校正SEM/STEM图像。通过同时观察样品的表面和内部结构,可以掌握样品的三维构造。
在像差校正SEM图像中,除了可以通过校正球差来提高分辨率之外,还可以获取更真实地样品表面图像。
规格
主要规格
| 项目 | 内容 | |
|---|---|---|
| 电子源 | W(310)冷阴极场发射型 | |
| 加速电压 | 200 kV、60 kV*1 | |
| 图像分辨率 | STEM | 0.078 nm(ADF-STEM图像) |
| TEM | 0.102 nm(晶格像) | |
| 倍率 | STEM | ×20~×8,000,000 |
| TEM | ×100~×1,500,000 | |
| 样品微动 | 样品台 | 偏心测角仪(Eucentric Goniometer)5轴样品台 |
| 样品尺寸 | 3 mm Φ | |
| 移动范围 | X, Y=±1.0 mm,Z=±0.4 mm | |
| 样品倾斜 | α=±25°、β=±35°(日立2轴倾斜样品杆*1) | |
| 像差校正器 | 配有日立照射系统球面像差校正器(标配) | |
| 图像显示 | PC | Windows® 10 *2 |
| 显示器 | 27英寸宽屏液晶显示器(机体控制显示器、第二显示器*1) | |
| 摄像头 | 标配伸缩式摄像头 屏幕摄像头*1(用于荧光板观察) |
|
机体尺寸/重量
| 项目 | 宽度×进深×高度(mm) | 重量(kg) |
|---|---|---|
| 机体 | 1,678×1,970×3,157 | 2,710 |
| 操作台 | 1,400×819×740 | 160 |
| 扩展操作台*1 | 580×819×740 | 53 |
| FE槽 | 1,041×840×1,317 | 520 |
| V0槽 | 398×630×1,046 | 180 |
| 控制电源 | 1,400×693×816 | 190 |
| 像差校正器电源 | 606×529×1,096 | 90 |
| 排气系统电源 | 913×663×1,790 | 470 |
| 转向系统电源 | 913×663×1,790 | 430 |
| 配重块 | 280×130×130 | 25 |
| Gatan控制器*1*3 | 610×864×1,321 | 244 |
| 冷却水控制装置 | 700×375×345 | 30 |
| 冷却水循环装置*1*3 | 450×550×1,126 | 95 |
| 干式泵*1 | 252×400×336 | 25 |
| 空压机*1 | 275×560×576 | 26 |
安装条件
| 项目 | 内容 | |
|---|---|---|
| 室温 | 15~23℃(温度变化:0.2℃/h以内) | |
| 湿度 | ~60% RH | |
| 电源 | 机体 | 单相AC200~240 V ±10%、50/60 Hz、10 kVA 断路器容量 50 A |
| 冷却水循环装置*1*3 | 三相AC200 V ±5%、50/60 Hz、30 A | |
| 接地 | D种接地(100 Ω以下) | |
| 冷却水 | 水量 | 5.1~5.3 L/min 1系统、2.0~2.2 L/min 1系统 (水压0.25 MPa) |
| 水温 | 16~18℃(变动:±0.1℃以内) | |
| 气体 | SF6 | 99.9%以上、0~500 kPa |
| 干氮 | 99.9%以上、0~500 kPa | |
| 压缩空气 | 600 k~800 kPa | |
购买之前,请设置预定安装处测量振动、磁场和噪声,如果超过容许值,请务必另行咨询。
关于容许值,请另行咨询。
*1:选项。*2:Windows是在美国以及其他国家的注册的美国Microsoft Corp.商标。*3:规格、尺寸均根据厂家、型号和配置的不同而会有所不同。
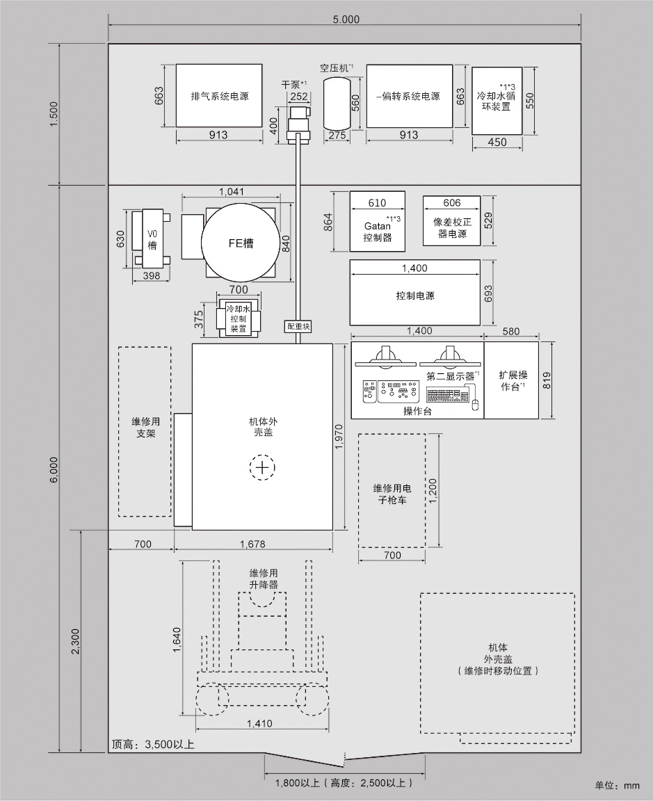
布局示例
※ 使用上述配置(包含维护工具),整体设备总重量约为5,500kg。
※ 请检查地面强度(kg/m2)>3×设备总重量(kg)/占地面积(m2)。
关联产品分类
相关链接
相关信息
分析仪器·电子显微镜·原子力显微镜:400-898-1021
* 关注日立科学仪器,了解更多仪器产品信息
生化分析仪:010-65908700
* 关注「日立诊断」微信公众号,了解更多仪器产品信息
